欢迎您访问中国氢能与燃料电池网
头条聚焦   |  产业政策   |  地方氢讯   |  企业动态   |  海外动态   |  会议报道   |  氢能财经   |  终端报道   |  项目信息
当前位置: 中国氢能与燃料电池网>行业资讯 >头条聚焦 > 质子交换膜燃料电池动力系统热管理综述

质子交换膜燃料电池动力系统热管理综述

2023-02-09 来源:Automotive Digest 浏览数:704

摘要:质子交换膜燃料电池(PEMFC)热管理子系统需要维持电堆及其它部件在适宜的温度范围内运行,对燃料电池系统的正常工作有着至关重要的作用。为跟踪其研究进展,对近年来相关研究进行了综述。首先,总结并对比了面向不同结构动力系统的热管理子系统结构。其次,总结了系统中的产热与传热问题,重点在于燃料电池电堆内部的产热与传热特性。然后,总结了应用于系统的控制策略,包括不同的控制算法和优化目标。最后,总结了相关研究方法。通过对相关研究工作对比分析,提炼了工作重点,指出并展望了未来的研究方向。

 摘要:质子交换膜燃料电池(PEMFC)热管理子系统需要维持电堆及其它部件在适宜的温度范围内运行,对燃料电池系统的正常工作有着至关重要的作用。为跟踪其研究进展,对近年来相关研究进行了综述。首先,总结并对比了面向不同结构动力系统的热管理子系统结构。其次,总结了系统中的产热与传热问题,重点在于燃料电池电堆内部的产热与传热特性。然后,总结了应用于系统的控制策略,包括不同的控制算法和优化目标。最后,总结了相关研究方法。通过对相关研究工作对比分析,提炼了工作重点,指出并展望了未来的研究方向。
 
1、前言
 
随着能源与环境问题的日益严重,清洁能源技术受到了世界各国的关注与重视。为了实现节能减排的目标,汽车行业正在逐步转型,传统内燃机汽车向电动汽车发展已经成为主流趋势。质子交换膜燃料电池(Pro⁃ton Exchange Membrane Fuel Cell, PEMFC)具有能源转换效率高、排放无污染、燃料来源广、操作温度低、启停迅速的优点,因而被公认为理想的车用能源转换装置。
 
但是,PEMFC的热管理问题一直是限制其商用化的巨大挑战。温度异常会使PEMFC的正常工作性能大大降低甚至损坏相关组件。PEMFC内部的电化学反应、气液两相流、电荷传输和质量传输过程都与热量传输紧密耦合,温度变化对各项反应活动都有影响。
 
PEMFC 的效率通常在 40%——60%之间,所以会有40%——60%的能量以热量的形式产生。与传统内燃机不同,PEMFC由反应气体带出的热量占其产热量的比重很低,因此大量(约98%)的热量都需要通过热管理系统散出。为了维持 PEMFC 内部温度的均匀性,稳定有效的热管理系统结构以及相应的控制策略必不可少。
 
燃料电池电堆的正常工作依赖于空气供应子系统、氢气供应子系统、水热管理子系统和DC/DC的协调配合,因此其功率输出响应比较滞后。但某些车用工况(如启停、急加速、爬坡)对功率输出的实时性要求很高,所以单一的 PEMFC 系统很难作为车用动力源。动力电池能够在功率需求高、变化幅度大的工况下弥补 PEMFC 无法满足的部分功率,同时还可以在功率需求急剧下降和制动时进行能量回收,大大弥补了单一PEMFC系统的不足。
 
本文综述了近年来关于车用PEMFC动力系统热管理子系统的结构、产热与散热、控制策略和研究方法的相关创新成果,并且针对不同的研究工作指出了创新研究重点以及未来可能的创新研究方向。
 
2、热管理子系统设计
 
车用 PEMFC 动力系统的产热源数量较多,主要包括电堆、动力电池、中冷器和电子产热元件。在热管理子系统结构设计中应该兼顾不同产热源的散热需求,保证系统的合理性与有效性。
 
2.1、单堆PEMFC系统
 
PEMFC系统包括空气供应、氢气供应和热管理3个主要的子系统和电堆。典型的车用 PEMFC 系统功率等级都比较高,因此通常采用液体冷却的方式。对于单堆 PEMFC 系统的热管理问题,大多数研究都聚焦于电堆的冷却液回路[8]。Cheng等对面向城市客车的 PEMFC 热管理子系统进行了研究,该系统只考虑了单电堆的冷却回路,利用水泵作为冷却液动力源,冷却液在电堆与散热器之间循环使用(图1)。赵洪波等则是在类似于图1结构的基础上在散热器旁增设了节温器,考虑了热管理系统中的大小循环。
 
 
图1 PEMFC热管理系统结构
 
在 PEMFC 空气供应子系统中,经过空气压缩机压缩后的空气温度能够达到 150 ℃以上 ,因此压缩空气需要经过中冷器组进行降温后才能进入电堆内部参与反应。有研究人员针对中冷器的散热需求单独设立了冷却液回路,但是这样做会增加系统的复杂性。周苏等选择将电堆冷却液回路和中冷器冷却液回路集成到一起,在热管理系统中引入旁通阀来分配流入电堆和中冷器的冷却液流量,具体结构如图2所示,针对此结构也开展了部分研究工作 。俞林炯等针对 45 kW 的 PEMFC系统设计了热管理子系统的结构并且建立了相关模型,通过仿真分析了不同操作条件对电堆温度、冷却液温度和中冷器出口温度的影响;周苏等将电堆冷却液旁通阀开度作为控制器的执行器之一开发了系统的控制算法,在电堆的温度控制问题上获得了较好的控制效果。Zhou等针对温度控制过程中系统寄生功率的问题进行了研究,在考虑系统功耗的前提下提出了1种基于最优功耗的温度控制算法,能够降低系统的寄生功率。Xing等在燃料电池混合电动汽车相关系统的建模与仿真工作中,建立PEMFC热管理系统模型时也采用了相同的结构。
 
 
图2 PEMFC热管理系统结构
 
在不同的单堆PEMFC热管理子系统结构中,不考虑节温器和中冷器的系统结构简单,有利于系统建模和控制器的开发,但是其无法完全满足PEMFC在冷启动过程中的需求,限制了其在系统中的应用。增设节温器但未考虑中冷器冷却需求的系统能够满足相关的工况需求,但是其需要为中冷器额外增设水泵,使得系统较为复杂,不利于系统结构的集成化;将节温器、中冷器都集中到1个热管理系统结构中不需要额外增设水泵,有利于系统的集成化,但是由于系统集成度较高,对控制器的算法开发提出了更高的要求。
 
2.2、燃料电池混合系统
 
PEMFC的运作依赖于空气压缩机、加湿器、循环泵辅助部件的正常运作,这导致搭载 PEMFC 系统的车辆在极限恶劣工况时输出功率无法满足车辆的实时需求。因此,车用 PEMFC 系统常与动力电池配合,在合理的能量管理策略下,动力电池能够在车用工况过程中起到“削峰填谷”的作用,在弥补 PEMFC功率不足的同时还可以进行多余的能量回收和为电子电器供电等功能。但是动力电池的引入也增加了系统的热源数目,在进行热管理系统设计时也需要保证动力电池的正常散热需求。戴海峰等对燃料电池插电式混合动力微型车所搭载的动力电池设计了热管理系统,通过对动力电池的散热需求计算指出微型车动力电池的产热量较低,因此采用“风冷”方式对动力电池进行散热;李忠等对燃料电池混合轨道交通车辆所搭载的大功率动力电池进行了热管理系统设计,采用液体冷却回路对动力电池进行散热,以“水+乙二醇”作为系统冷却液,根据动力电池和PEMFC系统的复合运行工况验证了系统设计的有效性。
 
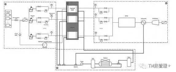
在进行热管理系统设计时也需要考虑动力系统中包括控制器、电动机和DC/DC等在内的部件散热需求。卢炽华等对整个PEMFC动力系统的热管理系统进行了设计与建模,采用了各自独立的回路结构对系统中多个热源进行散热,包括 PEMFC 电堆冷却回路、动力电池冷却回路、电驱动冷却回路和空压机冷却回路,不同回路的结构如图3所示,对不同的散热回路进行了建模与仿真分析,验证了各个冷却回路的散热能力。Rehlaender等提出了1个集成的燃电混合动力系统的热管理系统,将电驱动系统、PEMFC电堆、座舱和动力电池的冷却回路按照不同的温度需求集成为一体,较高温度的驱动系统冷却回路和较低温度的动力电池冷却回路分别通过热交换器与PEMFC电堆冷却回路和座舱冷却回路耦合,系统结构如图4所示,通过建模仿真的方法验证了所设计的热管理子系统能够满足散热需求。针对提出的热管理系统结构,Rehlaender 等设计了对应的控制策略,能够对系统中不同热源的温度进行合理控制,合理利用不同回路之间的耦合关系。Zhao 等也提出了燃电混合动力系统的热管理系统结构,单独设计了动力电池冷却回路、PEMFC电堆冷却回路和电驱动系统冷却回路,但是将3个冷却回路分别与空调系统耦合,在一定的热管理策略下能够做到余热利用。
 
 
图3 动力系统热管理结构
 
 
图4 集成热管理系统结构
 
2.3、多堆PEMFC系统
 
单堆 PEMFC 系统的功率可以满足中小型乘用车的需求,但是不能满足大型乘用车和商用车的需求。多堆 PEMFC 系统具有更高的功率,并且能够提高系统的容错率,成为了 PEMFC 动力系统未来的发展方向。但是多堆 PEMFC系统的热源数量再次增多,因此其热管理会变得更加困难。
 
多堆 PEMFC 系统的研究正处于起步阶段,对其热管理系统的研究工作也相对较少。多堆PEMFC系统的热管理子系统需要兼顾不同电堆的散热需求,Depature等提出了多堆PEMFC系统的串联和并联2种热管理系统结构,串联式热管理系统结构冷却液依次流经3个电堆,使得冷却液温度会在3个电堆中不断升高,需要协调整个回路上冷却液的温度,这给热管理带来了很大的困难,并联式热管理系统结构利用不同支路分配流经不同电堆的冷却液,这样只需要关注电堆进出口冷却液温度即可,便于系统热管理方案的实施,2种结构如图5所示,2种热管理系统的结构都包含了大小循环。Wu 等提出了 1 个 65 kW 的双电堆系统,其热管理子系统应用了并联式结构,利用水泵为2条支路提供冷却液冷却2个电堆,但是系统中只有1个回路,没有考虑冷却液的小循环。Zhou等在对多堆PEMFC系统结构的综述中提出了面向多堆 PEMFC 系统的并联热管理系统结构,并且引入旁通阀将中冷器冷却回路集成到系统中,同时考虑了电堆的大小循环,以满足不同电堆和中冷器的散热需求,结构如图6所示。
 
 
图5 多堆燃料电池热管理系统结构
 
 
图6 多堆PEMFC系统结构
 
多堆PEMFC串联式热管理系统的主冷却回路只有1个支路,因此结构较为简单,系统也更加集成化,但是在单个支路上有多个电堆使得系统的温度控制较为困难,尤其是当多个电堆的功率不同时,对于不同电堆的温度控制甚至无法完成,所以其应用前景较为有限。多堆PEMFC并联式热管理系统的主冷却回路存在多个支路,结构较为复杂,但是其能够在多电堆相互耦合的情况下达到对不同电堆温度单独控制的目的,有助于系统控制器的开发,具有良好的应用前景。
 
多堆PEMFC的热管理系统结构以单堆PEMFC热管理系统结构为基础。串联式多堆PEMFC热管理系统直接在单堆PEMFC热管理系统的主冷却回路上设置多个电堆。并联式PEMFC热管理系统在单堆PEM⁃FC热管理系统的主冷却回路上增设支路来满足多堆PEMFC 热管理系统的冷却液要求。2 种结构都使得原有系统更加复杂,在集成化和控制器的开发方面变得更加困难。因此多堆PEMFC热管理系统的结构集成和控制器的开发也是未来重要的研究方向。
 
3、PEMFC系统的产热
 
整个燃料电池系统主要的产热源为燃料电池电堆和中冷器组。Xing等研究了车用PEMFC系统的散热需求,指出在整个PEMFC工作过程中,电堆的产热量对热管理系统提出的散热需求占整个系统的 99%以上,而中冷器组的散热需求占比低于1%。所以针对于PEMFC系统的产热分析主要聚焦于电堆产热。
 
图7描述了PEMFC 的组成部分以及内部反应机理。质子交换膜(Proton Exchange Membrane,PEM)和两侧的催化层、气体扩散层以及双极板共同组成了1个PEMFC单体。氢气在阳极发生氧化反应分离成为电子和质子,氧气在阴极上发生还原反应并与质子和电子结合生成水,在化学反应的过程中伴随着能量和热量的释放:
 
 
PEMFC电堆内部的热量来源主要有电化学反应的熵热、不可逆反应热和电流产生的欧姆热,它们大致占总放热量的55%、35%和10%。
 
 
图7 PEMFC组成结构
 
PEMFC中的不可逆热是由于化学反应中带电粒子克服过电位所产生的,阴极氧气的还原反应过电位较高使得不可逆热主要在阴极产生 。2个电极上化学反应熵变的不平衡使得阴极的产热量更大,不利于维持PEMFC内部温度的均匀性。不可逆热是PEM⁃FC中最大热量来源,其对于电堆的温度分布和整个系统的热管理需求影响最大。
 
PEMFC在大功率运行工况下高电流密度所产生的欧姆热占比较大。欧姆热的产生与PEMFC内部各层的电阻和接触电阻有关,PEMFC的电阻由PEM的电阻所主导。随着PEM制造工艺的提升,大大降低了PEM的电阻,因此其它部分的电阻和接触电阻逐渐得到了关注。图8表示了PEMFC内部不同组分的面比电阻,图8(a)展示了通过试验测得的电堆内部不同部位的面电阻,包括石墨碳端板(Gr)、气体扩散层(GDL)、双极板(BPP)、微孔层(MPL)、质子交换膜(CCM)以及各部分之间的面比电阻;图8(b)将图8(a)中的面比电阻值按照不同类型进行了占比划分;图8(c)按照图8(a)中各部分的电阻值外推出了一个单电池的面比电阻值;图8(d)将图8(c)中的面比电阻值按照不同类型进行了占比划分。PEMFC各部分的电阻大小与很多因素相关,表1总结了PEMFC内部电阻的研究进展。对于PEMFC内部电阻的研究主要集中于双极板和气体扩散层。针对双极板的电阻研究大多集中在材料特性和加工处理方面,针对气体扩散层电阻的研究主要集中于操作条件对气体扩散层电阻的影响。
 
 
图8 PEMFC内部各组分面电阻
 
 
4、PEMFC系统的传热
 
电堆内部热量的传递影响其温度分布的均匀性。电堆与冷却液之间的热量传递决定了冷却液是否能够及时地将电堆内部多余的热量带出系统。采取不同的方式改善系统的传热情况有助于保障系统各部件的正常和高效率运行。
 
4.1、电堆传热
 
热量在PEMFC 内部产生后,会在PEMFC 内部各组件和外界环境之间传递。热管理子系统也是利用传热来维持PEMFC的正常工作温度以及内部温度的均匀性,避免温度过高使得PEMFC效率降低甚至造成局部“热点”损坏PEM,也避免温度过低影响正常的电化学反应。电堆传热也可以分为电堆内部的热量传递和电堆与外界的热量传递2部分,内部的热量传递指包含双极板、气体扩散层和膜电极在内的各组件之间的热传递,而外部的热量传递包含电堆与环境之间的对流传热、辐射传热以及双极板和冷却液之间的换热。图9显示了PEMFC内部不同组分所包含的热量传输。
 
 
图9 PEMFC内部的热量传输
 
电堆内部的传热主要取决于各组件的热阻以及不同组件之间的接触热阻,由于气体扩散层是连接主要产热组件(膜电极)和主要散热组件(双极板)的“桥梁”,其热阻以及与其它组件之间接触热阻的大小对PEMFC内部的传热性能影响很大。气体扩散层中聚四氟乙烯(Polytetrafluoroethylene,PTFE)的含量对其传热性能具有很大的影响,Burheim等通过试验验证了在一定的压力下PTFE的加入会降低干燥的气体扩散层的导热系数,PTFE的含量会随着气体扩散层的老化降低,使得导热系数增大。除此之外,外部操作条件也会对气体扩散层的导热系数产生影响,Xu等发现气体扩散层随着压力的增大会具有更高的导热系数,这是因为压力降低了气体扩散层的孔隙率,改善了其内部结构之间的接触。PTFE含量和压力的大小都会对气体扩散层导热系数产生影响,但是Burheim和 Xu 等都没有研究它们之间的具体作用关系,而Chen等通过试验研究了不同压力和不同PTFE含量下气体扩散层导热系数的变化,指出PTFE含量较高的气体扩散层增大压力会降低导热系数,PTFE 含量较低的气体扩散层增大压力会使得导热系数升高。
 
不同组件之间的接触热阻会对电堆内部传热产生很大的影响。Sadeghifar等研究了包括气体扩散层PTFE含量、压力和双极板表面不平度在内的不同因素对双极板和气体扩散层接触热阻的影响,PTFE含量和双极板表面不平度的增加都会增大接触热阻,而压力的增加则会降低接触热阻;Burheim等研究了气体扩散层与微孔层之间的接触电阻,发现微孔层的导热系数最低,气体扩散层次之,2者的过渡区间具有最好的导热性能。Sadeghifar等建立了气体扩散层和双极板之间接触热阻的力学模型,利用建立的模型分析了不同的参数对接触热阻的影响,模型指出接触热阻随着气体扩散层孔隙率的增加而变大,在孔隙率超过89%时变化尤为显著,气体扩散层内部的纤维直径与接触热阻大致呈线性关系,纤维直径越大,接触热阻越大。
 
实际PEMFC内部的各组件热阻分析是十分复杂的,因为热阻分析只有在 PEMFC 正常工作的前提下才有意义。而当 PEMFC 正常工作时,其内部伴随着非常复杂的化学和物理变化,类似于氢气、氧气、水蒸气乃至于液态水在PEMFC内部的传输都会伴随着热量的流动。对于内部热阻而言,气体传输、液态水含量 、温度变化和相关物质内部结构诸多因素都会对其产生影响。
 
4.2 、冷却液传热
 
燃料电池的冷却方式有空气冷却、液体冷却和相变冷却。车用PEMFC功率较大,并且其安装在空间比较狭小密闭的环境中,电堆与环境之间的对流换热和辐射传热的占比很小,因此为了获得良好的热管理效能,一般采用液体冷却的方式。液体冷却电堆的热平衡可由下式表示:
 
 
式中,cstMT 为电堆的热量变化;Qreact 为燃料电池内化学反应产生的热量;Qelect 为燃料电池对外输出的电能;Qm 为燃料电池内部质量流动所发生的热量交换,包括阴极、阳极气体流动以及冷却液流动等;Qvap 为燃料电池内部水相变所产生的潜热;Qrad 为燃料电池与环境之间的换热。
 
影响冷却液传热的因素包括PEMFC电堆端、冷却液本身以及散热器端。冷却液在PEMFC电堆端与双极板直接接触,因此冷却液流道结构对其换热具有很大的影响,结构简单的流道便于加工,但是内部流体换热能力差,复杂流道则相反。Yu等研究了不同的冷却流道形状(图10)对冷却效果的影响,通过仿真指出传统的蛇形流道A的冷却效果以及对温度均匀性的控制最差,但是其流体进出口压降较小,螺旋流道C的温度均匀性最好,但是由于流道的复杂性使得其进出口压降较大。Rahgoshay等比较了蛇形流道和平行流道的冷却性能,指出相对于更简单的平行流道而言,蛇形流道具有更好的冷却效果,并且采用蛇形流道也相应的提高了PEMFC的工作性能。为了改善PEMFC内部的温度均匀性,有研究人员提出使用“之”字形新型流道,Afshari等也比较了其与直流道之间的优劣性,指出“之”字形流道有助于增加散热,但是同样的也会增加进出口压降。因此,在进行双极板流道设计时应该兼顾流道形状对温度分布的均匀性以及进出口压降的大小。
 
 
图10 PEMFC不同冷却流道形状
 
冷却液本身的性质也会影响相关的换热过程。常用的PEMFC冷却液为去离子水或乙二醇和水的混合物,后者属于防冻冷却剂,适用于低温运行环境。考虑到汽车上可用空间不足,选用热容更大的冷却液能够降低散热器的尺寸、改善PEMFC的热管理性能,所以对新型高效冷却剂的需求也日益明显。
 
纳米流体被人们认为是大功率PEMFC冷却剂的良好选择,悬浮的纳米颗粒可以提高流体的比热容从而提高了流体的传热能力。Zakaria等为1个石墨冷却板提供100 W的恒定加热功率,将不同数量的AI2O3颗粒混合到水和乙二醇溶液中通过冷却板中的狭小流道,以此模仿纳米流体在PEMFC内部的流动,通过试验指出w(AI2O3)=5%的纳米流体在雷诺数为170的条件下散热效能超出水和乙二醇溶液7.3%,但是AI2O3颗粒的引入使得流体的密度和黏度增大,使得输送液体的泵耗能更高;Bargal等通过试验探究了纳米流体对散热器性能的影响,他们利用加热器来控制流体进入散热器的温度,比较了不同浓度ZnO和AIN纳米流体在不同流量下的换热能力,指出纳米粒子的添加能够增强冷却液的换热能力,并且在同等条件下,ZnO作为纳米粒子比AIN具有更好的换热效果;Islam等将导电性最低的ZnO纳米流体应用到了2.4 kW的PEM⁃FC上,研究发现ZnO纳米流体的应用不会降低PEMFC的工作性能,并且能够显著降低PEMFC系统散热器的尺寸,但是纳米流体的压降会随着流量的增加而显著增高,导致水泵功耗的增大。纳米流体虽然是PEMFC冷却剂的良好选择,但是纳米粒子的引入同样会增加流体的导电性和黏度等物理特性,因此其在车用PEM⁃FC上的大范围应用还有待进一步探索。
 
5、热管理控制
 
热管理子系统的首要目标是保证PEMFC的工作温度处于适宜的区间,满足其正常的工作需求。因此热管理子系统正常功能的发挥需要控制器的作用,车用PEMFC多变的工况和较大的功率需求对控制器提出了更高的需求。控制器的设计需要满足以下要求:良好的控制精度,保证维持 PEMFC 的温度水平。较短的响应时间,能够满足汽车多变复杂的工况。一定的抗干扰能力,保证整个系统运行的稳定性。
 
控制精度、响应时间和抗干扰能力控制指标需要控制算法来保障,经典PID控制因其算法简单和计算量低的特点得以广泛应用。Riascos等基于PEMFC内部温度与湿度耦合原理,研究了在控制过程中温度的最优控制问题并且给出了相关标准,基于PI控制成功将PEMFC 的温度维持在最优温度,保证了PEMFC的工作性能。经典 PID 控制器应用于非线性较强的PEMFC热管理子系统具有较大的限制,O'keefe等针对 PEMFC 热管理子系统开发了变参数PI 控制器,确定了在一定电流拉载下对应的最优冷却液流量,以25 A电流为界,提供了2套PI参数供控制器选择以适应 PEMFC 在低电流工作区间内的非线性,指出变参数PI控制器能够较好的控制PEMFC的温度。PID控制算法较为简单,并且计算量较小,能够满足控制器算法在系统运行过程中的实时性要求,因此应用较为广泛。但是PID控制算法在多堆PEMFC中的应用具有较多的限制,这是由于系统结构复杂和系统的非线性造成的。
 
传统的控制算法都是基于线性的系统模型或者需要精确的系统模型,而 PEMFC 系统内部机理复杂且使用工况多变,会产生模型不匹配和系统干扰问题。Li 等建立了 16 阶精确的 PEMFC 非线性模型,模型能够精确反映 PEMFC 的特性,针对所建立的模型设计了变结构控制方法,通过设计变结构控制的趋近率以改善其抖振现象,能够在一定程度上解决系统扰动和模型不匹配问题。Hu等针对所建立的模型设计了基于积分器的增量式模糊控制,利用模糊控制的特点来提升控制器的鲁棒性,利用积分器来消除静态误差,通过仿真验证了所设计控制器能够快速准确地控制 PEMFC 的温度,并且对于外界干扰具有一定的抵抗能力。谢雨岑等利用伸缩因子调节模糊论域的范围,设计了变论域模糊增量式控制器,通过仿真验证指出变论域模糊增量式控制器具有更快的响应速度,并且控制精度也明显提高;Li等将系统的电流扰动以及不确定性扰动统一归结成为“总扰动”,利用扩展状态观测器估计系统的“总扰动”,引入了变结构控制中的开关控制率,利用抗扰控制有效地降低了PEMFC系统的内部扰动和外部扰动,并且开关控制律的引入加速了系统的输出响应。考虑模型非线性和系统干扰的控制算法能够较好地处理在PEMFC运行过程中部分控制效果不好的情况,提高相关系统的稳定性与鲁棒性,但是针对于模型失配程度较大或者产生重大故障情况下的控制器设计还需进行相关的深入研究。
 
PEMFC系统运行过程中各部件的操作条件有约束。模型预测算法能够处理具有约束条件的系统控制问题,陈飞等设计了基于 PEMFC 热管理模型的模型预测控制器,指出模型预测控制器相较于PID控制器而言更有助于降低系统的能耗,并且具有更快的反应时间。Rojas 等 建立了 PEMFC 热管理子系统的非线性模型,将模型线性化后作为控制器模型,在状态观测器中引入积分器以保证控制器中模型的无偏特性,通过仿真指出所设计的模型预测控制器能够有效地解决 PEMFC 的温度控制问题,并且对于模型失配和系统干扰具有一定的抵抗能力。模型预测控制算法需要在线求解1个开环优化问题,常用的求解方法容易陷入局部最优解而非全局最优解,Fan等在求解优化问题的过程中应用了遗传算法,并且在建立预测模型的过程中采用模糊逻辑来拟合PEMFC 的特性,通过试验验证了所建立的控制器能够在较短时间内逼近目标值,具有一定的鲁棒性。在模型预测控制的建立过程中,PEMFC 的电力输出通常被作为系统的可测扰动,因而便丢失了一部分有效信息,Li等将系统的电力波动作为系统的前馈引入到控制系统中,提高了模型预测控制算法的优化效率,通过仿真得到了良好的结果后进行了试验验证。模型预测控制对于处理在约束条件下的系统控制问题具有良好的优越性,适用于多堆 PEMFC 的温度控制,并且具有良好的温度控制效果。但是模型预测控制算法的求解复杂,需要占用较多的计算资源,如何提高算法的实时性是未来对于模型预测控制的研究方向。
 
在控制热管理子系统的过程中,需要降低执行器的能耗,有助于降低系统的寄生功率。Zhou等在对PEMFC热管理系统设计控制算法时,基于稳态控制与反馈控制结合的控制算法,通过调节控制参数来优化系统功率消耗,在保证较好控制效果的同时降低了系统的功耗。Yu等研究了在大功率PEMFC系统热管理问题中提高温度分布的均匀性与降低泵寄生功率之间的权衡问题,指出控制风扇转速能够有效地控制电堆温度,在保证风扇效能的同时降低泵的功耗有利于降低系统的寄生功率。但是Yu的研究没有考虑到风扇功耗的影响,Han 等选择热管理子系统中的风扇、水泵和旁通阀作为执行器对电堆温度进行控制,通过仿真指出风扇的转速对寄生功率的影响比水泵转速对寄生功率的影响大,在对水泵转速采用良好控制策略的同时要尽可能的降低风扇的耗能。Saygi⁃li等对PEMFC系统的热管理控制设计了3种控制策略,也考虑到了在温度控制过程中的寄生功率问题,通过仿真对比也得出了类似的结论。
 
近年来,人工智能技术在 PEMFC 控制中也得到了相关的应用,赵洪波等针对 PEMFC 热管理子系统设计了基于神经网络的自抗扰控制器,用神经网络模型代替非线性误差反馈控制律,通过仿真验证控制器的效能,神经网络自抗扰控制器在不同程度噪声的干扰下都具有较好的控制品质。Rezaei 等在开发模型预测控制器的过程中利用神经网络能够非线性逼近不同函数的特点,将预测模型用神经网络模型代替,在有噪声干扰的情况下进行了仿真验证,指出所设计的神经网络预测模型能够较好的预测系统的动态,并且控制器在噪声干扰下具有较好的控制效果。
 
6、热管理研究方法
 
6.1 、建模仿真
 
PEMFC电堆的模型按照不同的建模维度可分为零维、一维、二维和三维模型。图11显示了PEMFC建模时的不同维度分布。
 
 
图11 PEMFC建模维度信息
 
零维模型一般不考虑PEMFC中参数在空间维度上的变化,仅考虑系统的输入输出,因此模型较为简单。零维模型在仿真过程中计算速度较快,并且能够在一定程度上较好地反映 PEMFC 的运行特性,在控制器的开发和热管理子系统部件的匹配选型方面得到了非常广泛的应用。
 
一维模型考虑了PEMFC电堆在Y方向上的各项参数变化,例如PEMFC内部双极板、气体扩散层、催化层和PEM的各项特性以及在Y方向上的传质和传热。在PEMFC热管理中,一维模型可以研究电堆在Y方向上的温度分布状况 ,反应不同单电池之间的差异。
 
二维模型在一维模型的基础上,考虑到了电堆中沿Z或X方向上的参数差异。二维模型有助于研究电堆内部流体在流动过程中的温度变化、沿程压力损失、传热传质和浓度变化问题。
 
三维模型是 PEMFC 最精确的模型之一,它能够全方位、多尺度地表述 PEMFC 的各项传热传质与内部化学反应。PEMFC的三维模型在计算求解的过程中耗时很长,在研究过程中通常保留对研究内容影响最大的部分而对模型做出相应的简化。表2整理了一些典型的PEMFC建模仿真研究。
 
 
6.2、试验研究
 
试验手段一方面可以真实地分析系统参数对PEMFC的影响特性,另一方面可以作为建模与控制的验证手段。柏兴应等通过试验研究了相变冷却技术在PEMFC系统中的应用,将均温板集成到1个含有5片单电池的电堆中,通过改变其电流拉载工况,研究电堆的温度分布与输出性能,得出均温板能够很好地保证电堆的正常散热和正常功率输出,并且在均温板的作用下电堆的温度均匀性良好。Zhao 等通过改变实际系统的冷却液温度得到在不同进出口温差以及不同电流负载下的系统特性输出,利用试验数据验证所建立模型的准确性,为模型的建立提供了实际数据保障。Mohamed 等针对小型 PEMFC 产热量较低的特点,提出升高电堆入口处冷却液温度的热管理策略以降低热管理子系统的寄生功率,通过试验分析了提高电堆入口冷却液温度后动态工况对电堆性能的影响,并控制入堆冷却液温度到达50 ℃后再开启散热风扇,结果指出此策略能够维持电堆的正常工作温度,但是由于温差的减小使得冷却速度下降。
 
PEMFC系统中电堆包含多片单电池,所以在电堆的不同部位会产生不同的温度分布。实时测量方法能够直接得到PEMFC内部的温度分布。不同的测量方法和相关的传感器也先后在PEMFC内部温度分布的测量中得以应用:如热电偶 、微电机系统传感器 、红外热成像、光纤传感器等。开发新型传感器以及采用适当的测量方法监控单片电池和电堆中的温度分布对PEMFC的热管理具有重要意义。
 
PEMFC热管理子系统的试验能够验证研究工作的准确性和适用性,在不同的研究阶段要根据实际情况合理权衡仿真研究与试验验证之间的结合。以控制器的开发为例,基于模型所设计的控制器取得较好的控制效果后在实际系统上进行检验,一方面可以验证整个研究过程的合理性,另一方面也可以验证所设计控制器的适用性。在试验验证之前还需要对系统测试需求进行总结与分析,以保证试验的完备性与有效性。
 
7、结束语
 
对PEMFC热管理方面的研究有助于提升热管理效能,为PEMFC的正常工作提供合适高效的环境。本文通过对车用PEMFC热管理系统的综述,总结如下:
 
在热管理系统结构设计方面,单堆和多堆PEMFC都会与动力电池结合作为整车动力源,整个系统热源数目较多,需要兼顾不同热源的散热需求设计合理的系统结构,在保证散热需求的同时尽量精简系统结构,合理利用系统的耦合关系,提高热管理效能。
 
在 PEMFC 系统的产热与传热方面,电堆是整个系统的主要产热来源,降低电堆内部的电阻有助于减少产热,降低电堆内部的热阻有助于其内部温度的均匀分布。纳米粒子的引入有助于冷却液及时将电堆内部的多余热量带出系统。
 
在 PEMFC 热管理控制方面,采用合理的控制策略有助于提升整个系统的热管理性能。通过引入人工智能方法来提升控制器的控制效果。在应用控制策略时要结合控制效果与执行器的寄生功率,保证在控制效果满足要求的前提下尽量降低系统的寄生功率。
 
在 PEMFC 热管理的研究方法方面,建模仿真与实验验证为主要研究手段,并且要根据研究进度合理地选择研究方法。在开发的最后阶段,应该在实际系统上采用试验的方式验证最后的结果,保证研究结果的准确性和普适性。
 
针对车用 PEMFC 系统的热管理问题,提出未来可能的研究方向:
 
(1)系统集成化
 
面向高功率应用场景的多堆PEMFC系统的市场需求会逐渐增大,针对其高功率和多热源的特性配备集成化的热管理系统是必要的,在系统设计时需要考虑其在车辆上布置时的空间限制问题,因此在系统集成和相关零部件匹配等方面需要做出相关研究。
 
(2)余热利用
 
多热源、高功率的系统意味着产热量的增加,因此在系统集成时将余热利用作为优化条件之一有助于为系统集成提供相关的评价标准,对应的评价指标为系统整体的能量效率。
 
(3)高性能冷却液
 
更大的散热需求会导致热管理系统相关部件的尺寸增大从而提高了其安装难度,开发类似于纳米冷却液的高性能冷却液能够增强冷却液与电堆之间的换热性能,有助于减小系统部件的尺寸。
 
(4)多热源协同控制
 
热源数目的增多使得系统结构更加复杂,产生了更多的系统约束。面向于多热源复杂系统的控制仍是研究的难点之一,有必要考虑复杂系统的不同运行状态,制定相应的控制策略,达到多热源之间的协同温度控制。
阅读上文 >> 技术升级!“中车造”氢能源数字轨道胶轮车出圈央视
阅读下文 >> 氢能重卡产业拐点已现

版权与免责声明:
凡注明稿件来源的内容均为转载稿或由企业用户注册发布,本网转载出于传递更多信息的目的,如转载稿涉及版权问题,请作者联系我们,同时对于用户评论等信息,本网并不意味着赞同其观点或证实其内容的真实性;


本文地址:http://www.h2fc.net/news/show-2545.html

转载本站原创文章请注明来源:中国氢能与燃料电池网

按分类浏览

点击排行

图文推荐

推荐行业资讯